Vendu : Obenheim - Maison 90m²
Programme neuf ! À l'orée de la forêt, au coeur d'un nouvel environnement résidentiel, proche de toutes les commodités, imaginez votre future et coquette maison de 90m² sur un terrain privatif de 196m².
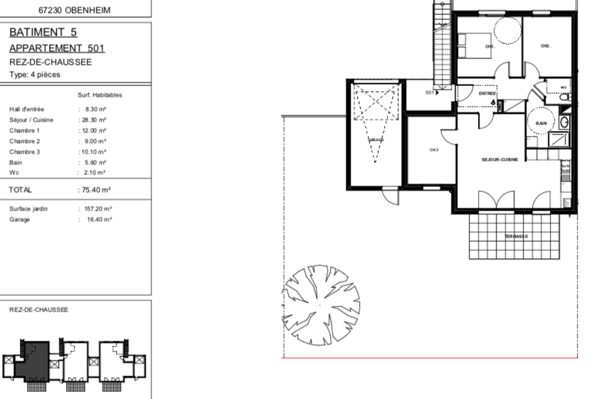
Profitez d'une entrée, d'un espace séjour avec cuisine ouverte donnant vers la terrasse et le jardin, d'une salle d'eau.
À l'étage vous apprécierez un dégagement, trois chambres et une salle de bains.
Nombreuses prestations : plancher chauffant individuel au gaz, volets électriques, possibilité d'encore modifier l'espace et de choisir les finitions.
À l'avant de la maison un espace avec jardinet, une place de parking et un garage viennent compléter ce bien.
Le bien est adapté aux personnes à mobilité réduite.
Frais de notaire réduit.
Ce projet s'inscrit aussi bien pour l'achat d'une résidence principale, que pour de l'investissement locatif.
Prix : 245 000 euros honoraires inclus
Prix : 235 000 euros honoraires exclus
Honoraires de 10 000 euros à la charge de l'acquéreur
Loading...



